Lapcici-Kompleks hotelskog tipa sa pumpom
Opis nekretnine
U malom mjestu na periferiji Budve, Lapcicima, prodaje se kompleks hotelskog tipa. Nalazi se na lako dostupnoj i mirnoj lokaciji na obronku brda iznad Budve i posjeduje panoramski pogled na budvansku rivijeru i Jadransko more. Smjesten je na oko 600 metara nadmorske visine i posjeduje lijepo opremljene apartmane, cafe bar, prostor za razne dogadjaje, a sve ce to biti upotpunjeno sa nekoliko modernih vila cija je izgradnja isplanirana kako bi zajedno sa kompleksom cinile harmonicno i povezano okruzenje.
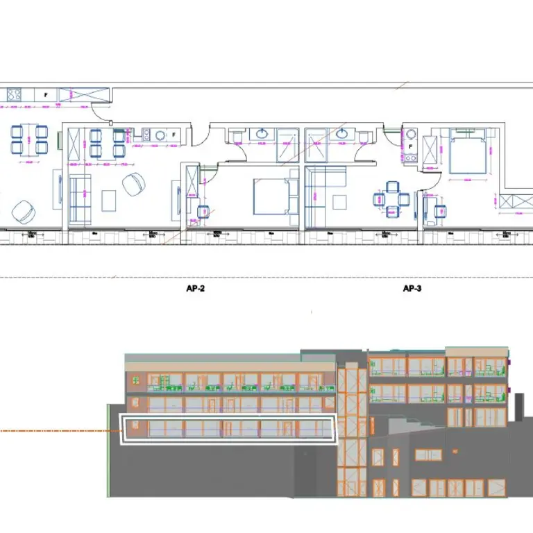
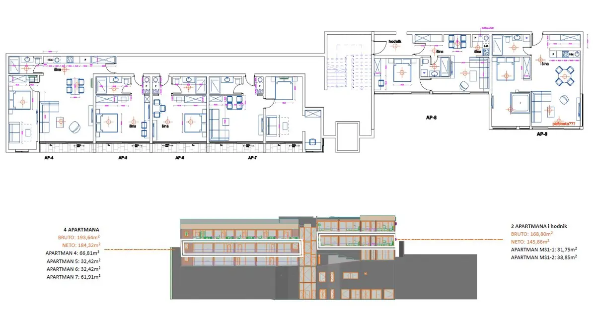
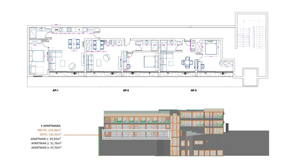
Kompleks posjeduje bruto povrsinu od 2200m2 sa 16 moderno opremljenih apartmana i 4 poslovna prostora takodje i veliku krovnu terasu sa djakuzijem povrsine 520m2 idealnu za intimna okupljanja i poslovne dogadjaje. U sklopu kompleksa je smjesten i veseraj koji je na raspolaganju gostima i vlasnicima.
Na platou ispred kompleksa se nalazi i benzinska pumpa koja se nalazi uz sami magistralni put. Rasprostire se na povrsini od 448m2 i posjeduje stabilan i predvidljiv prihod kad se uzme u obzir prometnost puta i cinjenica da posjeduje mali market .
Cijena hotelskog komplesa sa benziskom pumpom iznosi 7.050.000 eura, ali postoji mogucnost i odvojene kupovine. U tom slucaju cijena kompleksa je 3.750.000 eura,dok je za benzinsku pumpu potrebno izdvojiti 3.300.000 eura.
Agent za ovu nekretninu
Slične nekretnine u Budvi
Glavni detalji
- Kategorija:
- Prodaja hotela
- Lokacija:
- Lapčići
- Cijena:
- 3.750.000€
- Tip:
- Prodaja
- Šifra:
- 5507
- Kvadratura:
- 2200m2
- Korisna površina:
- 2200m2
- Parking:
- Da
